青青草原亚洲视频,天天草夜夜,天天爽夜夜,欧美日本国产在线观看,a视频在线播放,www.xxxx日本,天天做天天爱夜夜爽少妇

歡迎訪問徐州科威機電設備有限公司網站!

您的位置:首頁 - 產品展示 - 南方泵業

產品名稱:NISO, NIS, NISF 50Hz端吸離心泵

更新時間:2018/10/20 10:56:04

prev
next
產品介紹

典型應用

產品適宜在清潔、稀薄、非侵蝕、非易燃易爆且不含固體顆粒或纖維的液體中使用。

供水系統;供熱、空調系統;增壓供水、恒壓供水;消防、噴淋系統;灌溉、畜牧使用;工業冷卻、加熱循環系統;工業輸送、排放系統


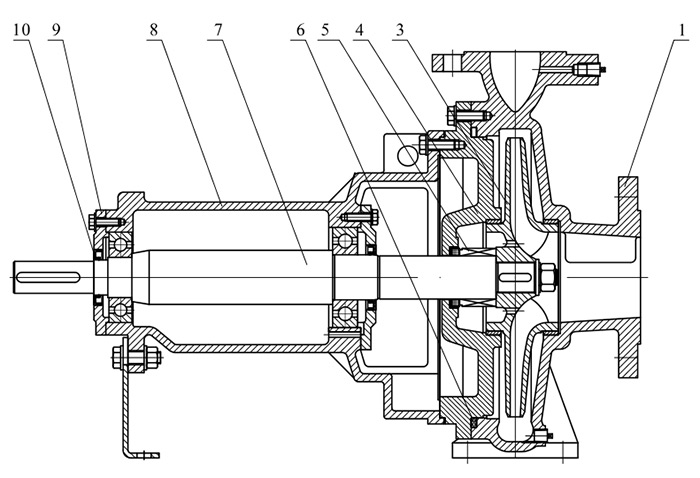
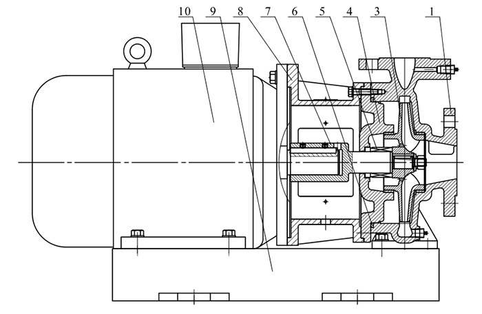
泵結構

泵為非自吸、單級單吸臥式,軸向進水,徑向出水, 泵體底部與底座固定。

采用標準型耐磨機械密封。

全封閉、風冷IEC標準電機。

NISO采用軸承架,可進行軸承定位,避免軸承的軸向竄動,同時提高了轉子部件的剛性。

MSO整體式泵軸,采用油脂潤滑的導向深溝球軸承。

NISO泵與電機之間采用半彈性聯軸器相連。

NISO泵外形及安裝尺寸符合ISO 2858標準。

NIS,NISF泵采用直聯型聯接加長軸結構。

鑄鐵泵體進出口法蘭符合GB/T17241.6(ISO7005-2)標準,壓力等級PN16;不銹鋼泵體進出口法蘭符合GB/T9113 (IS07005-1)標準,壓力等級PN16。


性能參數

*大流里:1200m3/h

*高揚程:160m

*大工作壓力:16bar

*大進口壓力:6bar

*大功率:200kW

介質溫度:-15℃~110℃

進出口徑:進口口徑:DN50~DN300;出口口徑:DN32~DN250


曲線條件

下列說明適用于后面所示的曲線。

曲線容差符合ISO9906:2012,3B。

所有曲線都基于電機在恒速2900rpm、2950rpm、 1450rpm或1480rpm 的測量值。

測試采用20C不含空氣的水,運動粘度為lmm2/s。


特點

參采用后拉式結構,維修時無須拆除泵體及管路。

NISO泵型僅采用4種泵軸及懸架體部件,提高了零件的互換性。

葉輪進行了優化設計,進口口徑加大,無渦流, 有效地降低水泵汽蝕余M,使得水泵運行平穩低噪聲。

NIS, NISF栗體積小、結構緊湊、安裝簡單。


型譜圖

NISO截面圖

NIS,NISF截面圖

上一條:ZS 50Hz不銹鋼臥式單級離心泵
下一條:SZ 50Hz氟塑料離心泵

返回列表

相關新聞

RELATED NEWS